Beyond Straight Lines: How Math Shapes Modern Architecture
- rishaayakakar09
- Jun 1, 2024
- 2 min read
Serving as the essential foundation upon which every architectural masterpiece is constructed, in the world of architecture Mathematics itself is the architect. From the towering skyscrapers that pierce the sky to the beautiful homes in serene landscapes, mathematics is the silent curator behind every curve, every angle, and every dimension.

Made by: Rishaaya Kakar
Platform Used: AutoCAD
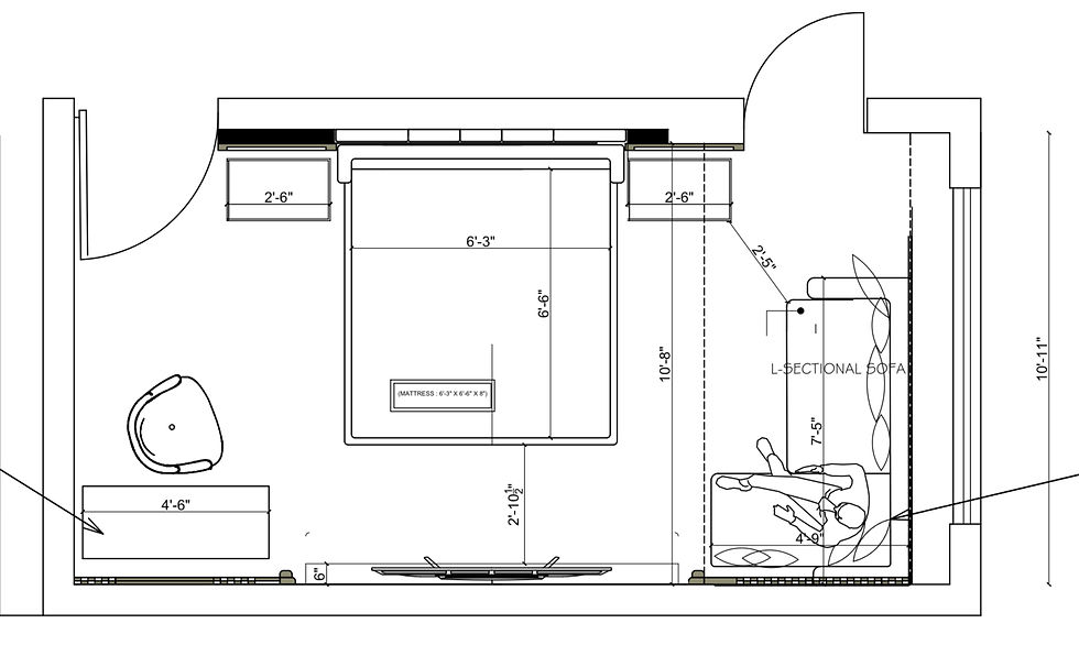
To present the architectural plans of any room, its dimensions are initially measured using standard units of Feet ( particularly for this image). Using AutoCAD, these measurements are scaled down to fit onto a sheet of paper or a digital screen. In the plan of this particular bedroom, the wall is measured to be 10 feet and 11 inches, now, this wall would entirely be measured to have a length of 131 inches.
(10 feet = 10 * 12 = 120 inches, Total length = 120 inches + 11 inches = 131 inches)
Scale = Real Length / Length Represented by 1 unit in AutoCAD
So, the wall would be reduced to a scale of 1:650 on AutoCAD if 1 unit represents 1 inch in real life, and such a scale would be continuous for all dimensions being used in the plan.
While creating these plans, we rely heavily on the geometric commands of Line for straight sections and Arc for curved elements, to allow the creation of different elements and contours. When incorporating doors into these walls, we utilize geometric principles to ensure seamless integration. The placement of door openings must be precisely calculated, taking into account not only the dimensions of the doors but also the swing angles required for unobstructed movement within the room.
When placing furniture in the bedroom layout, we also must take into account the concepts of clearance space and circulation paths. By doing so, we can ensure that there is enough room around each piece of furniture for comfortable use and movement, to allow its real-life implementation. This involves calculating distances and angles between furniture items and walls.
AutoCAD also allows us to calculate the area of individual rooms and the overall floor area of the bedroom. By using different commands of Area and Hatch, we can easily calculate the enclosed areas. For certain cases, volumetric calculations may also be necessary for certain features such as storage rooms, or closets.
In conclusion, the architectural plan of a bedroom is a very defined intersection of mathematics and design principles, where every line, angle, and dimension is carefully orchestrated to create a functional and aesthetically pleasing living space.



Comments